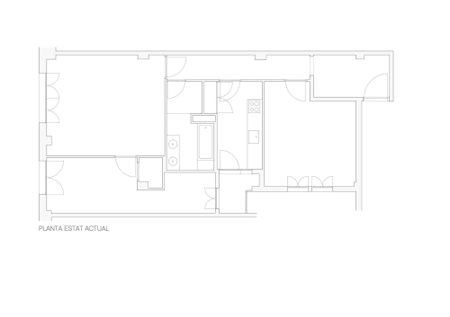
Siituado en el Eixample barcelonés, el piso se encuentra en el bajocubierta de un edificio construido a finales del s.XIX. Pese a haber recibido algunas modificaciones puntuales a lo largo de su historia, todavía mantenía muchos de sus elementos originales en un estado de conservación deficiente. Dos muros de carga partían la planta en tres vanos estructurales inconexos entre sí y una sucesión de tabiques impedía grandes visuales, acotando los espacios en exceso. Un falso techo ventilado de cañizo actuaba como cojín térmico, pero reducía 70cm la altura libre del piso, una versión low-cost de la cubierta a la catalana.
El proyecto parte de la voluntad de ampliar perceptivamente y dotar de calidad espacial el centro de la vivienda, que alberga todos los equipamientos en la nave intermedia. Se dispone la cocina como rótula, aglutinando circulaciones y tareas domésticas entorno a ella, a modo de banco de trabajo.
Gracias a la apertura de los muros de carga mediante huecos de ritmo regular, se consigue dotar de iluminación natural y doble orientación a casi todos los espacios de la vivienda, acercando el exterior a través de largas visuales cruzadas.
La existencia de patologías en diversas bigas de forjado obliga a realizar refuerzos estructurales, que se hacen extensivos a toda la planta. Mediante rebajado e hidrofugado de la capa de compresión se resuelve en un único gesto estructura y acabado. Por otro lado la eliminación del falso techo provoca la necesidad de aislarse térmicamente de la cubierta. Para ello se insertan paneles de corcho expandido en el entrevigado.
De ese modo se establece un diálogo entre los dos planos horizontales, techo y pavimento, muy texturados y de grano gordo, en contraste con los paramentos verticales y volúmenes de color blanco y acabado más pulcro.
Las instalaciones atraviesan los espacios de forma rotunda.
Como resultado; un conjunto de ambigüedades. Tanto en la relación de lleno y vacío de las divisorias, como en la cualidad pública o privada de los espacios, así como en los límites de éstos.
October 2014
Emergency dwelling for Refugees
The main goal was to explore an answer for a local refugee problem in Umeå, Sweden, 2014, that flipped to another dimension just a year after with the European migrant crisis.
Using the existing sprawl urbanism as a theoretical frame, the proposal aims to improve the neighborhood by the "Symbiosis" provided by the new guests. The individuality inherent by the housing typology is broken by this "parasite" that is attached to the kitchen of a single family house. By shearing the kitchen the building budget of the new apparatus is reduced dramatically and in addition new relations between the old inhabitants and the new neighbors, occur.
The isolate lifestyle of the suburban outskirts areas becomes busy and vibrant by the new micro centrality hub: the kitchen.
Complete Refurbishment
2019
Private client
58m² + 8m² terrace
740€/m²
Photography: Andrea Mas Photo
A very dark and segmented apartment is opened longitudinally to make light reach the end.
A second opening is practised in the main room to open the view.
70m²
2024 - Work in progress
May 2015
October 2016
Converting an old quarry to a natural water-cleaning lake and wetland.
Problems of the Post-Industrial Landscape. The project deals with the aim to transform an old clay quarry, and the industrial buildings associated to it. The huge scar produced on the landscape a profound damage on the biological frame, making it almost impossible to recover. The main goal is the naturalization of the environment.
The concept is to fill the big hole with water. clay is completely waterproof, so retention of water is granted. The source of water is the sub-urban neighbourhoods surrounding. By adding a series of water-cleaning ponds based on phytodepuration the dirty waters of that urban fabric are cleaned. To do so, a Little intervention is mandatory to collect the water, so the public space of those areas are benefited by a better planning of the space.
Dismantling the built structures, drilling the big concrete slab to make it permeable sets base for the autochthonous vegetation to take over the buildings. The ruins of the industrial past are the substrate for the new park.
The intervention degree is very Little. The guillotine stopcocks, a few concrete ramps and stairways and a small maintenance building are the only new manmade structures.
I am working on the shape of the 2021-2022 @helpsnowboards outlines.
In the process, lots of iterations are explored through subtle variations on the nose and tail.
Controlling the desired turning radius of the board is mandatory to ensure a proper handling, as well as many other parameters, which are discussed with the technical director of the brand.
The rest is left to play with proportions and intuition. Real fun!
Office and corporative building
https://europabuilding.es/
8200sqm, built.
L’Hospitalet de Llobregat, Barcelona
New construction
Collaboration with C97 Arquitectes i Associats
June 2016
Reprogramming Barcelona's waterfront.
From the medieval defensive wall to a multi modal connection hub. Solving discontinuities on urban fabric.
This project is located on the waterfront of Barcelona, in the Paseo Colón avenue. This site has suffered deep changes in its morphology during history, as it was the place where the medieval wall was located. During the Barcelona '92 Olympic Games the city’s orbital highway was built, embedded in this place through a key project by Manuel de Solà-Morales. In addition, the old railway station acts as an urban void, difficulting pedestrian connections.
As years go by, Solà-Morales' main concept, to open the city to the sea, remains up to date. Anyhow the tourism has grown dramatically since then, and new requirements come up to be able to absorb the people’s flows and potentiate the main goal of the architect.
By reshaping the section to a single platform space and improving it with shade and trees, the new scenario works as an ethereal and serving frame for the big multi-modal hub that happens underneath. A new tramway line links this space with other city centralities.
Five-star eco hostel renovation
https://www.massalagros.com/en/
3800sqm, 45 rooms, built.
Vallromanes, Spain
Renovation
Collaboration with C97 Arquitectes i Associats
Interior design for a restaurant
https://www.pilarakaneya.com/index.php?lang=eng
270sqm, built.
Madrid, Spain
Renovation
Five-star hotel and spa in a golf court
5200sqm, unbuilt.
La Manga, Spain
New construction proposal
Collaboration with C97 Arquitectes i Associats
Housing building
3100sqm, unbuilt.
Escaldes Engordany, Andorra
New construction proposal
Collaboration with C97 Arquitectes i Associats